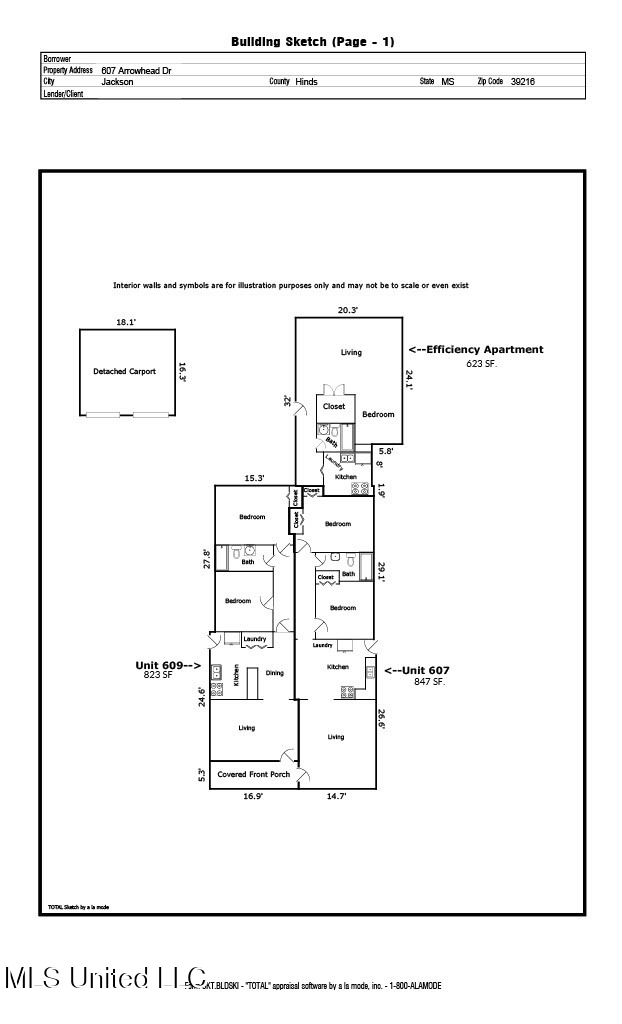
Back on market after buyer had financing difficulties. Excellent investment property in the highly desirable Fondren area! This triplex has been a popular rental for decades. It is located on a quiet street in one of Fondren's favorite neighborhoods. Unit A and Unit B each have 2 bedrooms, 1 bathroom, a living room, kitchen, and laundry hookups. The rear unit is an efficiency floorplan with a kitchen and laundry hookup. PLEASE SEE FLOORPLAN SKETCH in the photos section. The property has been owned by long-term MS investors who are retiring. The property is in need of an extensive renovation. After the property was vacated, the seller spent $6K on mold remediation and removal of damaged drywall and flooring. The seller decided to sell the property in as-is condition at a price that would allow investors to complete the renovation project to their specifications. When it was last leased, the property generated a gross monthly income of $2750 from all 3 units. Units B and C are metered together so the landlord paid those utilities; Unit A paid its own. This is a great opportunity to create 3 splendid market-rate rentals on one of the sweetest streets in beautiful Fondren with a potential of a combined monthly rental of around $3400 - 3800.
5
BEDROOMS
3
BATHROOMS
0.25
ACRES
1948
YEAR BUILT
One
LEVELS
2297
SQ. FT.
Primary Information
MLS#:4124678
Price:$160,000
Bedrooms:5
Bathrooms:3
Lot Size:10890
Lot Acres:0.25
Years Built:1948
Total Levels:One
Status:Active
Neighborhood Information
Address:607 Arrowhead Drive, Abc, Jackson, MS 39216
Details:Back on market after buyer had financing difficulties. Excellent investment property in the highly desirable Fondren area! This triplex has been a popular rental for decades. It is located on a quiet street in one of Fondren's favorite neighborhoods. Unit A and Unit B each have 2 bedrooms, 1 bathroom, a living room, kitchen, and laundry hookups. The rear unit is an efficiency floorplan with a kitchen and laundry hookup. PLEASE SEE FLOORPLAN SKETCH in the photos section. The property has been owned by long-term MS investors who are retiring. The property is in need of an extensive renovation. After the property was vacated, the seller spent $6K on mold remediation and removal of damaged drywall and flooring. The seller decided to sell the property in as-is condition at a price that would allow investors to complete the renovation project to their specifications. When it was last leased, the property generated a gross monthly income of $2750 from all 3 units. Units B and C are metered together so the landlord paid those utilities; Unit A paid its own. This is a great opportunity to create 3 splendid market-rate rentals on one of the sweetest streets in beautiful Fondren with a potential of a combined monthly rental of around $3400 - 3800.
Calculate Your Mortgage for MLS# 4124678
Our mortgage estimator will calculate the details of your estimated monthly mortgage payments. Figures entered below are examples and are used to demonstrate only. Edit the loan details on the bold selections, Select "Calculate Payment" and your information will update under "Your Results". For more information contact Sims Realty!
Your Results:
Monthly Principal & Interest - $Total Down Payment - $Loan Amount - $Interest Rate - %Term of Loan - ( Years )